¡Renovamos Goteo!

Goteo ha construido una historia única en el mundo del micromecenazgo. ¿Quieres seguir formando parte de ella?

Cendra espai col·lectiu a Xàtiva

2Round Remaining 39 days
In progress! Now 4 the optimum
Received
$ 230,017
Minimum
$ 159,007
Optimum
$ 406,175
193 Co-financiers
Channel
  • Contributing $ 204

    Recompensa moltes gràcies!

    El nostre agraïment inifinit i la satisfacció d'haver contribuït per a que l'espai cooperatiu siga una realitat.
    Invitació a la festa d'inauguració del local, juntament amb totes les persones i col·lectius que hagen col·laborat per a fer possible el projecte.

    Aportar desgrava: fins al 80% si ho inclous en la teua declaració de la renda. Hisenda et tornarà la resta. Com persona física aportant 10€ la teua despesa real serà de 2€. Comprova-ho ací: https://www.goteo.org/calculadora-fiscal

    > 07 Co-financiers
  • Contributing $ 489

    Pack Fanzines ravaleres

    Pack de fanzines del col·lectiu Fanzines ravaleres.

    Fanzines ravaleres és un grup d’acció fanzinera ubicada al barri del Raval (Xàtiva). Pretén ser una eina per l'edició, producció i distribució de Fanzines des d’una perspectiva crítica, transfeminista i antiautoritària, que pose en valor les nostres arrels i identitat.

    Aportar desgrava: fins al 80% si ho inclous en la teua declaració de la renda. Hisenda et tornarà la resta. Com persona física aportant 19€ la teua despesa real serà de 3,80€. Comprova-ho ací: https://www.goteo.org/calculadora-fiscal*

    > 09 Co-financiers
  • Contributing $ 530

    Espai infantil + Àlbum il·lustrat Socarrades + sorteig pack sorpresa Ubeefe

    Fes possible un racó per a la xicalla dins de l'espai col·lectiu. A més, emporta't el llibre Socarrades, un àlbum escrit per Eva Calabuig, il·lustrat per Carles Vercher i adaptat a pictogrames per Neus Llàcer.

    Participació al sorteig d'un Pack amb diferents peces de roba de la marca Ubeefe.

    Aportar desgrava: fins al 80% si ho inclous en la teua declaració de la renda. Hisenda et tornarà la resta. Com persona física aportant 25€ la teua despesa real serà de 5€. Comprova-ho ací: https://www.goteo.org/calculadora-fiscal

    > 11 Co-financiers
  • Contributing $ 612

    Samarreta Verd de terra + sorteig pack sorpresa Ubeefe

    Samarreta Verd de terra. Disseny d'Ubeefe. Estampació a Cendra Coop. Samarreta de cotó 100% orgànic de 155Gr

    Participació al sorteig d'un Pack amb diferents peces de roba de la marca Ubeefe.

    Aportar desgrava: fins al 80% si ho inclous en la teua declaració de la renda. Hisenda et tornarà la resta. Com persona física aportant 30€ la teua despesa real serà de 6€. Comprova-ho ací: https://www.goteo.org/calculadora-fiscal

    > 54 Co-financiers
  • Contributing $ 714

    Bossa Verd de terra + sorteig pack sorpresa Ubeefe

    Bossa Verd de terra. Disseny d’Ubeefe, estampació a Cendra Coop. Bossa de cotó 100% orgànic de 400Gr.

    Participació al sorteig d'un Pack amb diferents peces de roba de la marca Ubeefe.

    Aportar desgrava: fins al 80% si ho inclous en la teua declaració de la renda. Hisenda et tornarà la resta. Com persona física aportant 35€ la teua despesa real serà de 7€. Comprova-ho ací: https://www.goteo.org/calculadora-fiscal

    > 09 Co-financiers
  • Contributing $ 1,020

    Espai infantil + Àlbum il·lustrat Socarrades + Àlbum il·lustrat Comboi + sorteig pack sorpresa Ubeefe

    Fes possible un racó per a la xicalla dins de l'espai col·lectiu. A més, emporta't el llibre Socarrades, un àlbum escrit per Eva Calabuig, il·lustrat per Carles Vercher i adaptat a pictogrames per Neus Llàcer.

    Participació al sorteig d'un Pack amb diferents peces de roba de la marca Ubeefe.

    Aportar desgrava: fins al 80% si ho inclous en la teua declaració de la renda. Hisenda et tornarà la resta. Com persona física aportant 30€ la teua despesa real serà de 6€. Comprova-ho ací: https://www.goteo.org/calculadora-fiscal

    > 13 Co-financiers
  • Contributing $ 1,122

    Dessuadora Verd de terra + sorteig pack sorpresa Ubeefe

    Dessuadora Verd de terra. Disseny d’Ubeefe, estampació a Cendra Coop. Bossa de cotó 100% orgànic de 280Gr.

    Participació al sorteig d'un Pack amb diferents peces de roba de la marca Ubeefe.

    Aportar desgrava: fins al 80% si ho inclous en la teua declaració de la renda. Hisenda et tornarà la resta. Com persona física aportant 55€ la teua despesa real serà de 11€. Comprova-ho ací: https://www.goteo.org/calculadora-fiscal

    > 17 Co-financiers
  • Contributing $ 1,224

    Fes-te sòcia de Cendra espai cooperatiu + Sorteig pack sorpresa Ubeefe + Bossa Verd de terra.

    Fes-te sòcia de Cendra espai cooperatiu i paga el primer any + Bossa coop. (60€ anuals)
    A més de donar suport a l'espai col·lectiu també té molts avantatges! La quota funciona anual.
    Al ser sòcia tindràs dret a:

    • Sorteig pack La Caixonera.
    • 5% descompte a la botiga online Ubeefe
    • 5% descompte al nostre taller d'estampació Cendra.
    • 5% de descompte en activitats amb cost.

    Participació al sorteig d'un Pack amb diferents peces de roba de la marca Ubeefe.

    Aportar desgrava: fins al 80% si ho inclous en la teua declaració de la renda. Hisenda et tornarà la resta. Com persona física aportant 60€ la teua despesa real serà de 12€. Comprova-ho ací: https://www.goteo.org/calculadora-fiscal

    > 19 Co-financiers
  • Contributing $ 1,305

    Espai Impuls de l'economia social i solidària + Tote bag Verd de terra + Samarreta Verd de terra + Sorteig sopresa Ubeefe

    Fes possible un espai per l'economia social i solidària dins de l'espai col·lectiu i emporta't una tote bag i una samarreta Verd de terra.

    Participació al sorteig d'un Pack amb diferents peces de roba de la marca Ubeefe.

    Aportar desgrava: fins al 80% si ho inclous en la teua declaració de la renda. Hisenda et tornarà la resta. Com persona física aportant 64€ la teua despesa real serà de 12,80€. Comprova-ho ací: https://www.goteo.org/calculadora-fiscal

    > 08 Co-financiers
  • Contributing $ 1,530

    Pack làmines Eyelinerhxcnpunk

    Pack làmines Eyelinerhxcnpunk

    Participació al sorteig d'un Pack amb diferents peces de roba de la marca Ubeefe.

    Aportar desgrava: fins al 80% si ho inclous en la teua declaració de la renda. Hisenda et tornarà la resta. Com persona física aportant 75€ la teua despesa real serà de 15€. Comprova-ho ací: https://www.goteo.org/calculadora-fiscal

    > 07 Co-financiers
  • Contributing $ 2,141

    Espai cultural i d'aprenentatge + Àlbum il·lustrat Comboi + VAL per un taller + pack Ravaleres + llibre Socarrades + sorteig pack sorpresa Ubeefe

    Fes possible un Espai cultural i formatiu i emporta't un Àlbum il·lustrat Comboi, VAL per un taller, un pack de fanzines Ravaleres i un llibre Socarrades.

    Participació al sorteig d'un Pack amb diferents peces de roba de la marca Ubeefe.

    Aportar desgrava: fins al 80% si ho inclous en la teua declaració de la renda. Hisenda et tornarà la resta. Com persona física aportant 105€ la teua despesa real serà de 21€. Comprova-ho ací: https://www.goteo.org/calculadora-fiscal

    > 01 Co-financiers
  • Contributing $ 2,447

    Fes-te sòcia de Cendra espai cooperatiu pagant els dos primers anys + Sorteig pack sorpresa Ubeefe + Bossa Verd de terra.

    Fes-te sòcia de Cendra espai cooperatiu i paga els dos primers anys + Bossa coop. (60€ anuals)
    A més de donar suport a l'espai col·lectiu també té molts avantatges! La quota funciona anual.
    Al ser sòcia tindràs dret a:

    • Sorteig pack La Caixonera.
    • 5% descompte a la botiga online Ubeefe
    • 5% descompte al nostre taller d'estampació Cendra.
    • 5% de descompte en activitats amb cost.

    Participació al sorteig d'un Pack amb diferents peces de roba de la marca Ubeefe.

    Aportar desgrava: fins al 80% si ho inclous en la teua declaració de la renda. Hisenda et tornarà la resta. Com persona física aportant Aportant 120€ la teua despesa real serà de 24€. Comprova-ho ací: https://www.goteo.org/calculadora-fiscal

    > 08 Co-financiers
  • Contributing $ 2,447

    Recompensa Socis col·lectius: 5% de descompte al nostre taller d'estampació + us eventual de l'espai + Taller de formació: Poder i gestió de conflictes

    Si formeu part d’un col·lectiu i voleu donar suport a Cendra espai cooperatiu (120 € anuals), aquesta és la vostra recompensa.
    A més de donar suport a l'espai col·lectiu també té molts avantatges! La quota funciona anual.
    Al ser soci col·lectiu tindreu dret a:

    • Sorteig pack La Caixonera.
    • 5% descompte al nostre taller d'estampació Cendra.
    • Us eventual de l'espai.
    • Un taller de formació a càrrec d'Ana Cameros d'Argila facilitació: "Poder i gestió
      de conflictes"

    Participació al sorteig d'un Pack amb diferents peces de roba de la marca Ubeefe.

    Aportar desgrava: fins al 80% si ho inclous en la teua declaració de la renda. Hisenda et tornarà la resta. Com persona física aportant Aportant 120€ la teua despesa real serà de 24€. I la teua despesa real serà de 65€ com a persona jurídica. Comprova-ho ací: https://www.goteo.org/calculadora-fiscal

    > 04 Co-financiers
  • Contributing $ 5,098

    Pack total

    Fes possible Cendra espai col·lectiu i emporta't un Àlbum il·lustrat Comboi, una Tote bag Verd de terra, un pack de fanzines Ravaleres, un llibre Socarrades, una samarreta Verd de terra, una dessuadora Verd de terra i un Pack de làmines Eyelinerhxcnpunk.

    Participació al sorteig d'un Pack amb diferents peces de roba de la marca Ubeefe.

    Aportar desgrava: fins al 80% si ho inclous en la teua declaració de la renda. Hisenda et tornarà la resta. Com persona física aportant 250€ la teua despesa real serà de 50€. Comprova-ho ací: https://www.goteo.org/calculadora-fiscal

    > 04 Co-financiers
  • Contributing $ 10,197

    Solidària

    Fes possible Cendra espai col·lectiu i emporta't un Àlbum il·lustrat Comboi, una Tote bag Verd de terra, un pack de fanzines Ravaleres, un llibre Socarrades, una samarreta Verd de terra, una dessuadora Verd de terra i un Pack de làmines Eyelinerhxcnpunk.

    Participació al sorteig d'un Pack amb diferents peces de roba de la marca Ubeefe.

    Aportar desgrava: fins al 80% si ho inclous en la teua declaració de la renda. Hisenda et tornarà la resta. Com persona física aportant 500€ la teua despesa real serà de 300€. Comprova-ho ací: https://www.goteo.org/calculadora-fiscal

    > 01 Co-financiers

Hem arribat al mínim! 🎉 T'esperem dissabte per celebrar-ho al local

21 | 01 | 2026

Hola!
T'escrivim encara amb l'emoció al cos: gràcies a la teua aportació i a la de més de 140 persones, hem assolit l'objectiu mínim de 7.797 € en poc més de 15 dies!. És increïble sentir aquest suport tan gran al projecte de Cendra - Espai Cooperatiu.
Però no volem que Cendra es quede només en un número en una pantalla. Volem que veges on anirà tota aquesta ajuda. Per això, ens fa molta il·lusió convidar-te a la nostra Jornada de Portes Obertes:

  • 🗓️ Quan? Aquest dissabte 24 de gener.
  • ⏰ Horari: Estarem de 11h a 18h.
  • 📍 On? Al carrer Trobat, núm. 12. Xàtiva
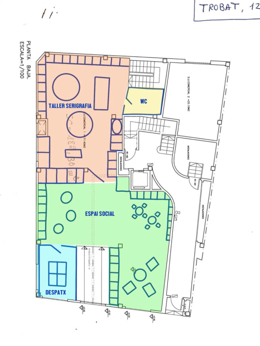
    Serà el moment perfecte per ensenyar-te en persona la distribució del local: des del futur taller de serigrafia fins a l'espai social i el despatx. Volem explicar-te el projecte cara a cara, resoldre dubtes i, sobretot, donar-te les gràcies personalment.
    Seguim caminant!

🛠️📐Ens trobareu rascant parets, netejant i condicionant el nou local. Tot aquest suport ens ha donat l'energia que ens faltava per posar-nos el mono de treball.

Haver arribat al mínim ens assegura que el projecte tira endavant, però encara ens queden 23 dies de campanya per intentar assolir l'objectiu òptim de 19.917 €. Aquest impuls extra ens permetrà millorar les instal·lacions i arrancar amb molta més força.
Si t'apeteix, vine dissabte a descobrir el nou Espai Cooperatiu de primera mà. T'esperem!
Amb molta il·lusió,
L'equip de Cendra

Comments

Inicia sesión para dejar un comentario